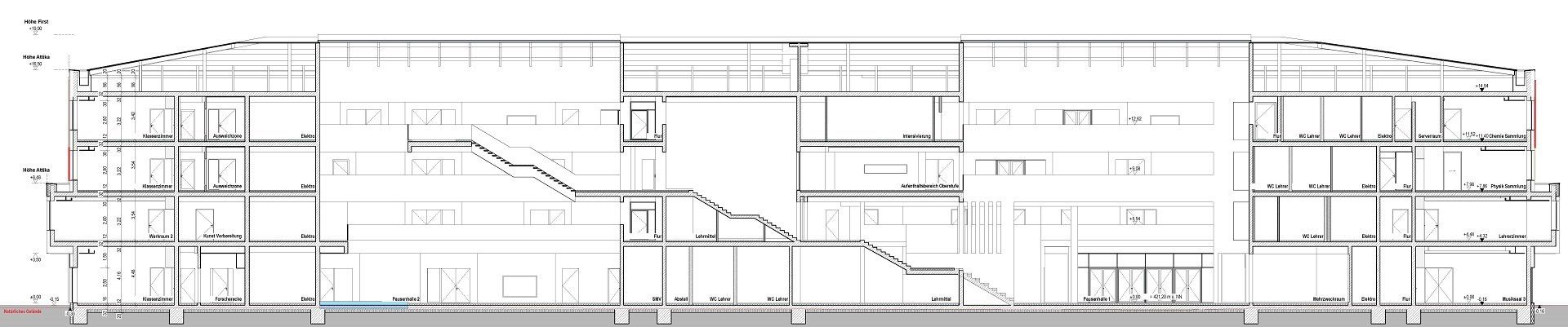
Willibald-Gluck Gymnasium, Neumarkt
Neubau / Fertigteilbau
BAUHERR
Landkreis Neumarkt
BAUZEIT
Mai 2011 – Juli 2015
BAUVOLUMEN
Schule: 13.580 m² Bruttogrundfläche
Turnhalle: 3.479 m² Bruttogrundfläche
ca. 90.000 m³ Bruttorauminhalt
ARCHITEKTURBÜRO
Berschneider & Berschneider
BESONDERHEITEN
Das Gebäude verfügt über eine komplette, eingefärbte Stahlbeton-Fassade.
In der Turnhalle wurden Stahlträger mit einer Spannweite von 30 Metern verbaut.






